Erstklassig vermietet und hochwertig saniert
Renditeobjekt in bester Lage von Grimma
Objektnummer: 221
1.240 m2
Grundstück
5
Wohneinheiten
695.000 EUR
Kaufpreis
Objektbeschreibung
Der Vermietungsmarkt für Büros in Grimma und der Umgebung wurde von den Maklerinnen allgemein nach Büros und Praxen im Speziellen nach Flächen vergleichbarer Nutzungsgrößen untersucht. In der näheren Umgebung des Objektes (1 km Radius) wurden sechs Büros und Praxen mit einer Mietfläche zwischen 22 m² bis 227 m² angeboten. Davon wiesen drei Objekte vergleichbare Merkmale auf. Die Recherchen bewegen sich zwischen 5,50 EUR/m² bis 7,58 EUR/m², im Durchschnitt 6,56 EUR/m². Ergänzend wurde das Mietniveau der Städte Borna und Leipzig gemäß veröffentlichter Marktstudien (IVD-Gewerbepreisspiegel Borna Büro/Praxis- guter Nutzungswert im Mittel 5,50 EUR/m² und IVD-Gewerbepreisspiegel Leipzig Büro/Praxis- mittlerer Nutzungswert im Mittel 6,75 EUR/m² betrachtet, wobei die Angaben zu Leipzig nur eingeschränkt vergleichbar sind. Aufgrund des Marktresearchs, der Kappungsgrenze und des Bau- und Unterhaltungszustandes (Gebäudealter) wird eine Miete i.H.v. 6,30 EUR/m² als marktüblich erachtet. Im Radius von 1 km wurden 13 Wohnungen mit zum Angebotsobjekt vergleichbaren Wohnflächen von 50 m² bis 100 m² angeboten. 10 Wohnungen weisen dabei eine zum Objekt hinreichende Vergleichbarkeit auf. Das Mietniveau befand sich in einer Spanne zwischen 4,67 EUR/m² und 6,47 EUR/m², im Mittel bei 5,63 EUR/m². Das Angebotspreisniveau der Flächen (100 m² bis 135 m²) im Umkreis von 1 Km bewegte sich zwischen 5,27 EUR/m² und 6,50 EUR/m², im Mittel bei 5,92 EUR/m². Ergänzend wird das Mietniveau des Capital Immobilienkompass 2017 gemäß deren veröffentlichter Marktstudie angegeben: „Betrachtet man Bestandswohnungen, liegen die Mietpreise aktuell bei 5,03 €/m², für Neubauwohnungen in vergleichbaren Lagen bei 5,13 €/m².“
Für Investoren ist dieses Anwesen genau die richtige Adresse. Im näheren Umkreis von bis zu 1 km waren zum Zeitpunkt unserer Recherche 7 Mehrfamilienwohnhäuser oder Wohn- und Geschäftshäuser als Anlageobjekte zum Kauf verfügbar. Hiervon sind vier Gebäude (bzw. deren Wohnflächen) mit dem Bewertungsobjekt vergleichbar. Die Angebotspreise bewegen sich zwischen 513 EUR/m² und 1.550 EUR/m², im Durchschnitt 780 EUR/m². Hilfsweise wird der Capital Immobilienkompass für Ein-Familien- oder Doppelhäuser aus dem Bestand (älter als 3 Jahre) mit normaler Ausstattung herangezogen. Zurzeit werden diese im Schnitt für 1.029 EUR/m² zum Kauf angeboten. Bei dem Anwesen Lorenzstraße liegt der Marktwert bei rd. 988 EUR/m², was angesichts des Baualters angemessen ist und in der Bandbreite von üblichen Marktwerten für Mehrfamilienhäuser liegt. Unberücksichtigt sind hierbei die im Preis bereits inkludierten 10 Stellplätze auf dem großzügigen Grundstück rückseitig. Für die Nutzung einzelner Flächen als Kanzlei im Objekt wurden keine eigenständigen Kaufangebote recherchiert, da diese Flächen auch zukünftig wieder als Wohnungen nutzbar sind.
Die Flutschutzmauer, die Grimma vor dem Hochwasser schützen wird, soll voraussichtlich im Jahr 2018 funktionsfähig sein. Diese Tatasache und eine Elementarschaden-Versicherung nehmen bei diesem Anwesen die Überschwemmungsmöglichkeit aus der Risikobetrachtung.
Im Fazit befindet sich das Wohn- und Geschäftshaus in einem absolut gepflegten Gesamtzustand und bietet Workaholics mit Familie, Mietern und Investoren gleichermaßen einen echten Lieblingsort in einer historischen Villa in einer der begehrtesten Kommunen im Landkreis Leipzig.
Bei weitergehendem Interesse stehen die Maklerinnen Ihnen gerne für eine Besichtigung zur Verfügung.
Beschreibung der Ausstattung
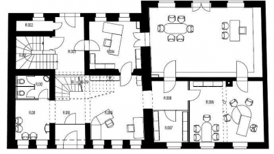
g 1 Büro / EG / 1.OG / 227,98 m²
w 1 Wohnen / 1.OG / 2. OG / 56 m² - 84 m²
w 1 Wohnen / DG / 126 m²
Nutzung: w = Wohnen, g = Gewerbe
Beschreibung der Lage
„Hier wohnte Professor Gottlob Lorenz, Verfasser der Chronik unsrer Stadt“. Professor Gottlob Lorenz wurde für seine Verdienste von der Stadt Grimma die Ehrenbürgerschaft verliehen. Er lebte in Grimma in der Rittergasse 15; im Jahr 1873 benannte die Stadt die Rittergasse in Lorenzstraße um – und diesen Namen trägt sie bis heute.
Das Wohn- und Geschäftshaus liegt im Zentrum der Stadt Grimma in der Lorenzstraße 7, weniger als 200 m vom Marktplatz entfernt innerhalb einer geschlossenen Bebauung aus Wohn- und Geschäftshäusern. Die große Kreisstadt Grimma gilt als eine der begehrtesten Kommunen im Landkreis Leipzig. Als überregionaler Bildungsstandort bietet Grimma mit seinen zahlreichen Schulen viele Möglichkeiten zur qualifizierten Aus- und Weiterbildung. Immer mehr Menschen schätzen Grimma als kinderfreundliche und zukunftsorientierte Stadt – das beweisen die aktuellen Zuwanderungsstatistiken.
Wo lässt es sich besser leben, als in Grimma – umgeben von Kulturdenkmalen und geschützten Landschaften, mit einem vielseitigen und weiter entwicklungsfähigen Arbeitsplatzangebot, mit hervorragender Infrastruktur und weltoffenen Bürgern. Familien schätzen vor allem das engmaschige Netz an Betreuungsstätten, Spielplätzen, Schulen, Freizeitangeboten, Vereinen sowie Sozial- und Gesundheitseinrichtungen. Die Altstadt von Grimma und ebenso die Mulde sind in wenigen Minuten fußläufig erreichbar. Mit der Zugverbindung und der Anschlussstelle zur Autobahn 14 ist eine Top Anbindung nach Leipzig und Dresden gegeben. Vom Charme der alten Garnisonsstadt ganz zu schweigen. Für Investoren also genau die richtige Adresse.
Die „Perle des Muldentales“ ist eine Bezeichnung, welche Grimma seiner historischen Altstadt verdankt. Alteingesessene Sachsen wissen, dass keine zwanzig Kilometer südöstlich von Leipzig ein kleines Paradies liegt. Nach zahlreichen Eingemeindungen im 20. und 21. Jahrhundert ist sie mittlerweile flächenmäßig die viertgrößte Stadt Sachsens. Das Stadtbild wird von zahlreichen Baudenkmälern aus verschiedenen Epochen geprägt welche der charmanten Stadt einen besonderen historischen Charakter verleihen. Die Gegend, wo die Mulde noch von lieblichen Höhenzügen umgeben ist und sich eine wunderschöne Talaue geschaffen hat, hatte die Menschen schon immer zum Niederlassen gereizt. Über die Jahrhunderte ist hier eine Kulturlandschaft gewachsen, die heute zu großen Teilen unter Schutz steht.
Zum Schutz der Stadt wurden nach 2013 vorhandene Gebäudemauern ertüchtigt sowie eine freistehende Hochwasserschutzmauer mit verschließbaren Toranlagen und eine unterirdische Dichtwand als Bohrpfahlwand errichtet. Die Flutschutzmauer, die Grimma vor dem Hochwasser schützen wird, soll voraussichtlich schon im Jahr 2018 funktionsfähig sein. Von der 2,1 Kilometer langen Schutzmauer sind oberirdisch 1,4 Kilometer fertig. Unterirdisch ist das Bauwerk bereits komplett. Bis zur endgültigen Fertigstellung wird die Kommune auf eigene Faust sicherstellen, dass ein Mulde-Hochwasser der Stadt nichts anhaben kann.
Die Maklerinnen empfehlen eine Schifffahrt auf der Mulde …
Details zur Provision
Die Courtage in Höhe von 3,57 % inkl. der gesetzlichen Mehrwertsteuer auf den Kaufpreis ist mit dem Zustandekommen des Kaufvertrages (notarieller Vertragsabschluss) verdient und fällig.
Rechtliches
Angeboten wird ein voll vermietetes Wohn- und Geschäftshaus mit einer gesamtnutzfläche von ca. 700 m², 5 Wohn- und 2 Gewerbeeinheiten, mitten im Stadtzentrum von Grimma. Zur Eigennutzung oder als Kapitalanlage!
Kontakt aufnehmen
Sie Suchen eine Immobilie oder möchten verkaufen?
Kontaktieren Sie uns!
Nach Hause Immobilien
GmbH & Co. KG
Froschkönigweg 1
04277 Leipzig
Tel. 0341 86721235
Fax 0341 8605967



































